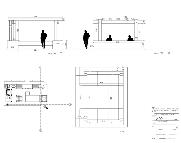
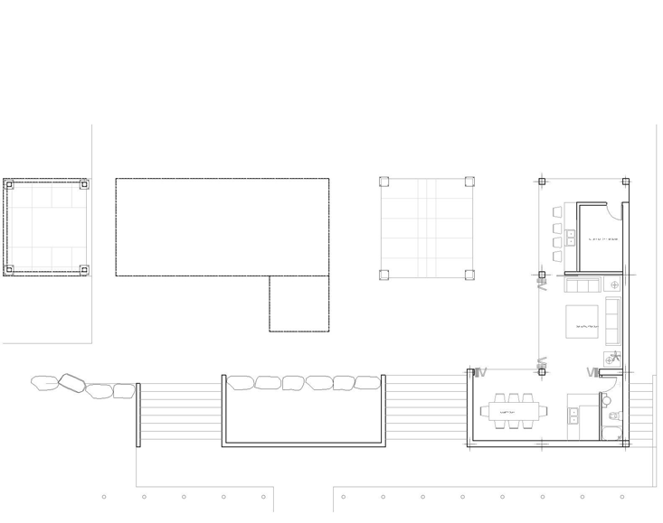
• POOL HOUSE

Client: Albatros Management & Investment S.L
Location: Ciudalcampo. Madrid.
Date: 3/06/2006
Budget: 120.000 euros

  • Alon Architects&Partners ©
  • Artwork by: